NHS HIGH SCHOOL PERFORMING ARTS CENTRE REFURBISHMENT

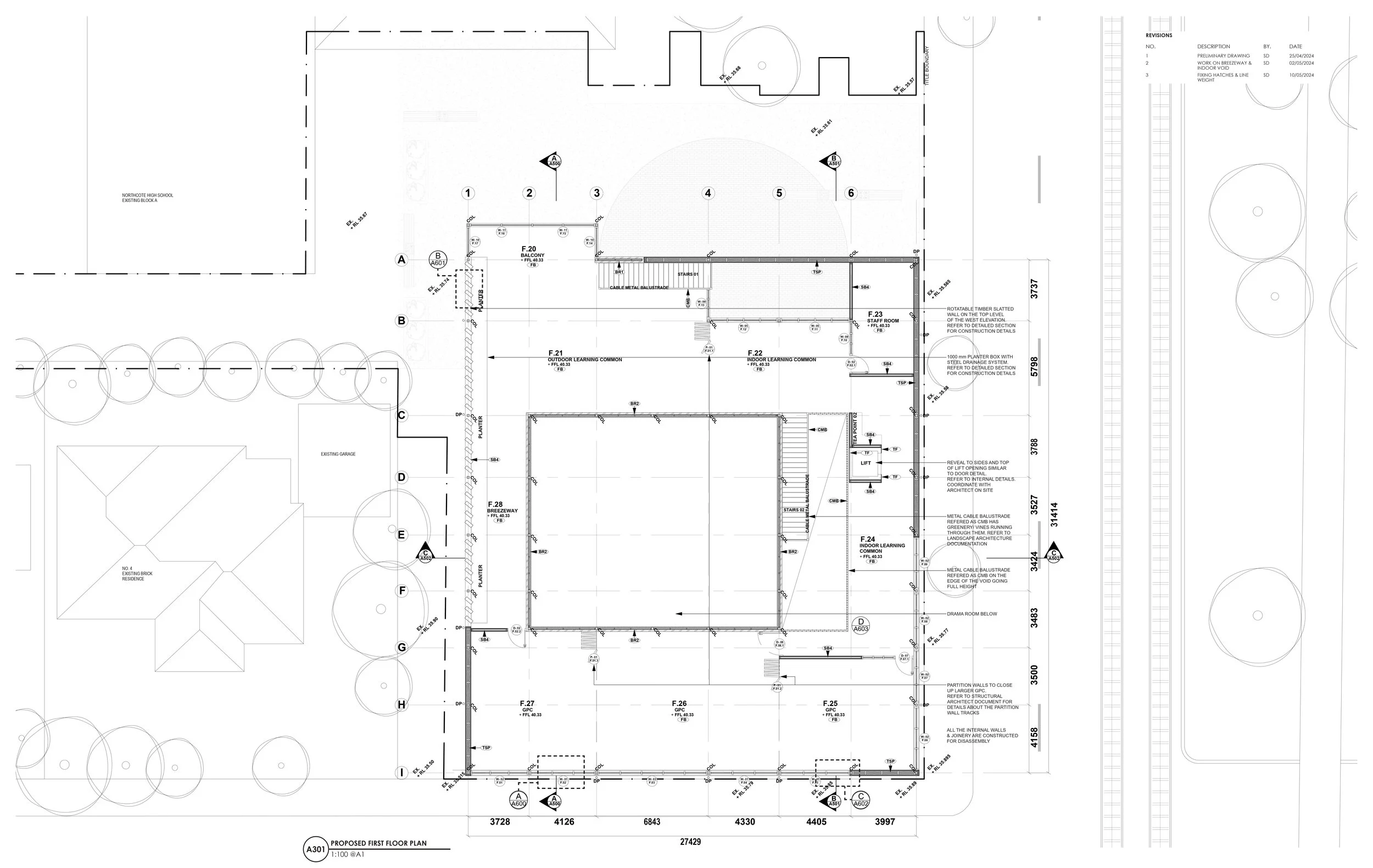
The refurbishment of Northcote High School Performing Arts Centre reimagines the existing facility as an energy-positive, high-performance educational environment. Designed to support music, drama, and theatre studies, the project also incorporates social spaces, a senior study centre, and support services, setting a new standard for sustainable school architecture.

Driven by a site-responsive approach, the design enhances occupant comfort and resource efficiency through optimised building orientation, passive environmental strategies, and thoughtful material selection. Prioritising energy efficiency, water conservation, and indoor environmental quality, the project aspires to achieve Petal Certification under the Living Building Challenge framework.

This collaborative effort involved the entire team in the development of detailed construction documentation, with individual contributions clearly credited through marked initials on all drawings and deliverables. The result is a regenerative, forward-thinking performing arts facility that not only supports creative education but also exemplifies environmental stewardship in the built environment.

Indoor Light well- Credit: ES
Indoor Light Well- Credit: ES
Previous
Previous

Revive

Next
Next

Neo-metric